Suite

気品あふれる贅沢なスイートルーム

ホテルが誇る4タイプのスイートルーム。
広々としたリビングルームに落ち着いた風合いの調度品をご用意しております。
日常を離れて、贅沢なひとときをお過ごしください。

Feature of room お部屋の特徴

  • ワンランク上の空間

    広々としたリビングルームで贅沢なひとときをお過ごしいただけます。

  • 広々バスルーム

    浴室から景色を一望できるお部屋もありごゆっくりとバスタイムをお楽しみいただけます。

  • 特別な設備とアメニティ

    マイナスイオンドライヤーなど種類豊富にアメニティをご用意しております。

Governor suite ガバナースイート

バスルームから名古屋市中心部の夜景がお楽しみいただけます。ダブルベッドタイプ。

広さ

66㎡

フロア

25・26F

定員

1~2名まで

ベッドサイズ

180 × 203 cm

間取り図一例

Ambassador suite アンバサダースイート

気品あふれるスイートルームです。リビングとベッドルームの2ルームタイプ。ツインベッドタイプ。

広さ

72㎡

フロア

25~27F

定員

1~2名まで

ベッドサイズ

120 × 203 cm

間取り図一例

Royal suite ロイヤルスイート

ホテルが誇るロイヤルスイートです。
ハリウッドツインタイプ。

広さ

175㎡

フロア

27F

ベッドサイズ

120 × 203 cm

間取り図一例

備品・アメニティ

  • バスタオル
  • ハンドタオル
  • フェイスタオル
  • 歯ブラシ
  • コーム
  • ブラシ
  • カミソリ
  • シャワーキャップ
  • コットンパフ
  • 綿棒
  • 固形石鹸
  • ハンドソープ
  • スリッパ
  • 爪やすり
  • シューミット
  • 消臭スプレー
  • ミネラルウォーター
  • 煎茶
  • ほうじ茶
  • 電気ケトル
  • シャンプー(ボトル)
  • リンス(ボトル)
  • ボディーソープ(ボトル)
  • マイナスイオンドライヤー
  • ナイティ(ナイトウェア)
  • バスローブ
  • シモンズベッド
  • 加湿機能付空気清浄機
  • DVD・CDプレイヤー

※上記アメニティの他に貸出品 をご用意しております。

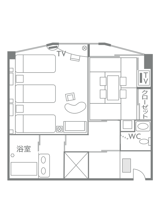
Japanese-Western suite 和洋室

小さなお子様からご高齢のお客様まで幅広くお使いいただけます。和モダンベッドをしつらえた和洋室です。

広さ

69㎡

フロア

16F

定員

1~4名まで

ベッドサイズ

120 × 203 cm

間取り図一例

備品・アメニティ

  • バスタオル
  • ハンドタオル
  • フェイスタオル
  • 歯ブラシ
  • コーム
  • ブラシ
  • カミソリ
  • シャワーキャップ
  • コットンパフ
  • 綿棒
  • 固形石鹸
  • ハンドソープ
  • スリッパ
  • 爪やすり
  • シューミット
  • 消臭スプレー
  • 煎茶
  • ほうじ茶
  • 電気ケトル
  • シャンプー(ボトル)
  • リンス(ボトル)
  • ボディーソープ(ボトル)
  • ドライヤー
  • ナイティ(ナイトウェア)
  • バスローブ
  • シモンズベッド
  • 加湿機能付空気清浄機

※上記アメニティの他に貸出品 をご用意しております。

Services サービス

  • ベストプライス保障

    IHG公式サイトから直接ご予約いただく際に、オンライン上での現時点での最安値を保証します。

  • フィットネスルーム

    フィットネスジムで気持ちよく体を動かして、心と体をリフレッシュする、贅沢な時間をお過ごしください。

  • ご朝食

    2Fカジュアルダイニング ガーデンコートにて朝食ブッフェをご用意いたします。

  • ルームサービス

    お客様のご要望にいつでもフレキシブルに対応する「24時間対応ルームサービス」

  • フリーWi-Fi

    無線LAN内蔵パソコンまたはタブレット端末、スマートフォンなど、インターネット接続が無料でご利用いただけます。

  • 貸出備品

    客室アメニティの追加、ならび客室備品、貸出備品等のご用命はお気軽にフロントまでお申し付けください。

Breakfast 朝食のご案内

お客様の大切な一日の始まりが、気持ちの良いひとときとなりますように、心を込めておもてなしいたします。

Contact お問い合わせはこちら

Tel : 0120-758-029
(宿泊予約係)